Projekt garażu G2+
Jeśli planujesz uzupełnić projekt swojego wymarzonego domu o funkcjonalny garaż dwustanowiskowy, oferowany projekt architektoniczno-konstrukcyjny stanowi idealne rozszerzenie podstawowego projektu domu. Rozwiązanie to zostało zaprojektowane z myślą o komforcie użytkowania, elastyczności lokalizacji oraz spójności architektonicznej całej inwestycji.
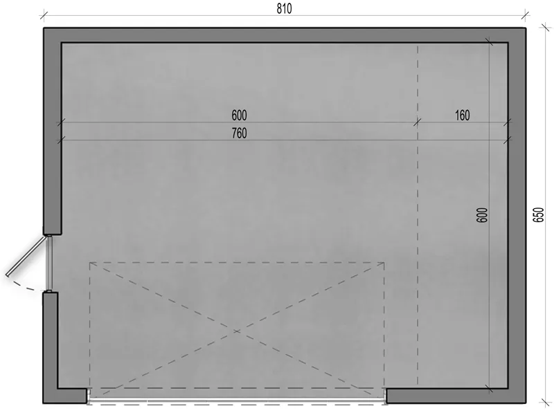
Parametry budynku garażowego:
- pow. użytkowa: 45,6 m²
- wymiary budynku: 6,50 x 8,10 m
- wysokość attyki: 3,17 m
- spadek dachu: 1,5°
* Zamówienie projektu garażu jest możliwe wyłącznie łącznie z projektem domu.
Cena Produktu
Opis projektu
Garaż zaprojektowano jako odrębny, niezależny obiekt, oddylatowany od budynku mieszkalnego, co zapewnia pełną swobodę w jego usytuowaniu na działce. Dzięki temu możliwa jest realizacja garażu zarówno bezpośrednio przy ścianie domu, jak i w formie wolnostojącej, w dowolnym miejscu na działce – zgodnie z obowiązującymi warunkami zabudowy oraz indywidualnymi potrzebami inwestora.
Takie rozwiązanie pozwala na łatwe dopasowanie układu zabudowy do specyfiki terenu, układu funkcjonalnego działki oraz planów zagospodarowania przestrzeni.
ŚCIANY ZEWNĘTRZNE: dwuwarstwowe, murowane z bloczka silikatowego gr. 18 cm zaizolowane termicznie styropianem grafitowym
ELEWACJE: wykończona tynkiem / tynkiem strukturalnym
FUNDAMENTY: budynek posadowiony na żelbetowych ławach i betonowych ścianach fundamentowych, zaizolowanych termicznie
STROP: nad garażem zaizolowana płyta żelbetowa, ze spadkiem w celu odprowadzenie wód opadowych
Praktyczne dodatki do projektu
Poznaj nasze funkcjonalne mini produkty, które ułatwiają realizację wymarzonego domu. Zostały stworzone tak, aby wspierać Cię na każdym etapie inwestycji – od modyfikacji projektu i jego adaptacji, aż po rozpoczęcie prac budowlanych.
