Budowa domu pasywnego, dodatnioenergetycznego i samowystarczalnego
Dom samowystarczalny niezależny od dostaw- ców mediów, wyposażony w m.in.:
- dach solarny o mocy 13,7 kWp i dodatkowe magazyny energii
- własną studnię głębinową
- przydomową i biologiczną oczyszczalnię ścieków
- zbiornik magazynujący wodę do podlewania ogrodu
- ziemianka do przechowywania produktów spożywczych
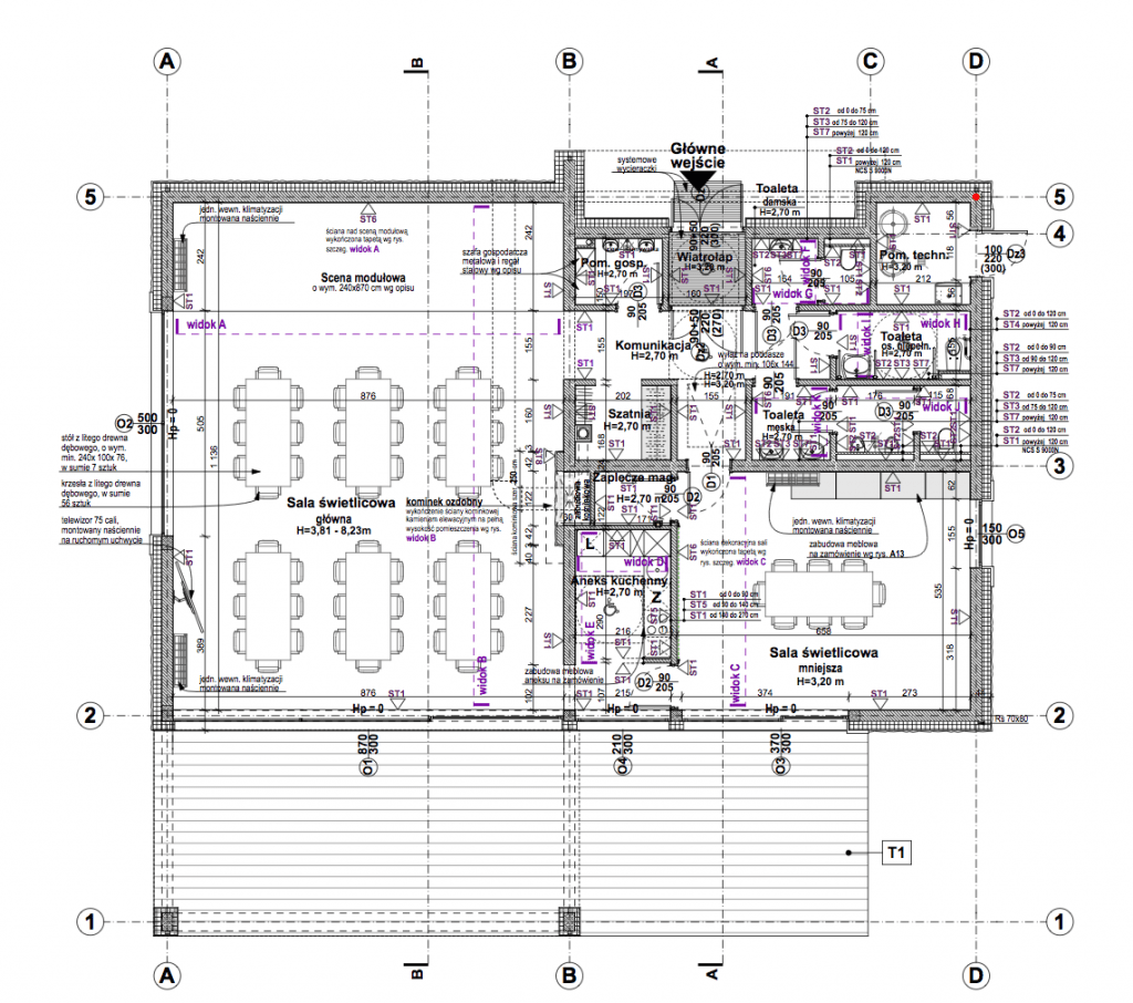
Dom z poddaszem o łącznej powierzchni ponad 180 mkw. Na parterze przestronny salon, funkcjonalnie połączony z jadalnią i otwartą kuchnią (wraz z ukrytą spiżarnią). Na poddaszu 4 pokoje, duża łazienka i garderoba.
W stylu nowoczesnej stodoły o minimalistycznej elewacji, fragmentarycznie wykończonej deską opalaną oraz dużymi przeszkleniami na parterze (okno smart-slide o wym. 400x 250, pozostałe 280x 250) od strony południowo-zachodniej. Marzeniem Pani Inwestor jest również ogród w duchu permakultury
Serdecznie polecam Hexa Green Architekt! To było półtora roku współpracy pełnej zrozumienia potrzeb klienta
Serdecznie polecam Hexa Green Architekt! To było półtora roku współpracy pełnej zrozumienia potrzeb klienta. Adaptowaliśmy projekt HG 06 passive ze sporą ilością zmian. Pani Kamila z cierpliwością i pełnym profesjonalizmem urzeczywistniała nasze wyobrażenie o domu marzeń. Ponadto bezproblemowo i bez żadnych uzupełnień uzyskała w naszym imieniu pozwolenie na budowę, a dokumentacja projektowa jest szczegółowa. Z niecierpliwością czekamy na pierwsze wbicie łopaty!
