HG 06 passive
Projekt domu pasywnego parterowego z poddaszem użytkowym o łącznej powierzchni 145 m², stworzony z myślą o 4–5 osobowej rodzinie. Dom w standardzie pasywnym łączy komfort życia z minimalnym zużyciem energii, niższymi kosztami eksploatacji i przyjaznym wpływem na środowisko.
Elewacja domu zachwyca zwartą, minimalistyczną bryłą w stylu nowoczesnej stodoły z dwuspadowym dachem, jasną, gładką elewacją oraz dużymi przeszkleniami. Ciepłe akcenty drewna nadają bryle nowoczesny charakter i wyjątkowy styl.
Zobacz szczegóły projektu!
Dane budynku
Cena Produktu
Dostępność: 5 - 10 dni
Opis projektu
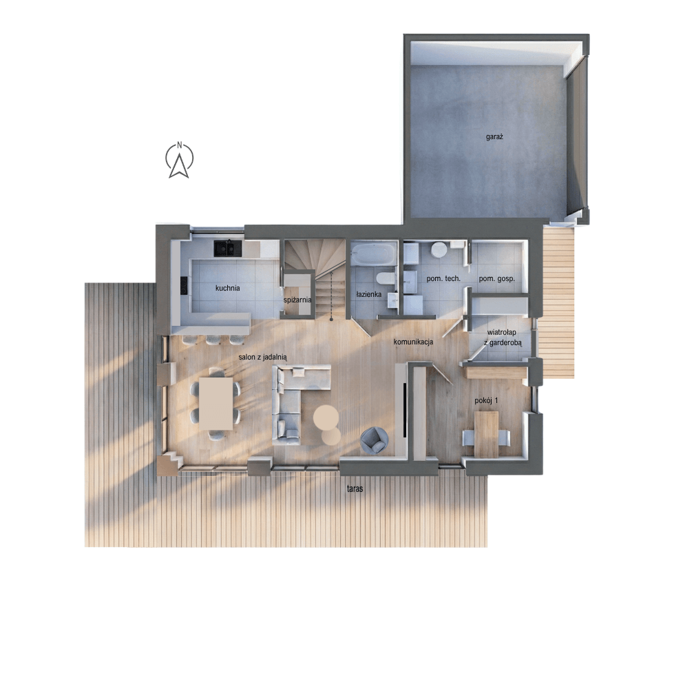
Na parterze znajduje się przestronny salon połączony z otwartą kuchnią i jadalnią, z bezpośrednim wyjściem na taras – idealne miejsce na spotkania rodzinne. Dodatkowy pokój może pełnić funkcję gabinetu, pokoju gościnnego lub miejsca do nauki. Znajdują się także łazienka, spiżarnia, pomieszczenie techniczne z pralnią oraz wiatrołap, co zapewnia wygodę i funkcjonalność w codziennym użytkowaniu. Na poddaszu zaplanowano cztery sypialnie, w tym jedną dwuosobową, dużą łazienkę oraz garderobę, gwarantując komfortową i dobrze zorganizowaną przestrzeń prywatną.
Projekt domu przewiduje możliwość rozbudowy o garaż dwustanowiskowy, co pozwala dopasować dom do działki i indywidualnych potrzeb inwestora.
Nowoczesny projekt domu wyróżnia się funkcjonalnym układem pomieszczeń i wysoką efektywnością energetyczną, co przekłada się na niższe koszty eksploatacji. Prosta bryła budynku oraz duże przeszklenia poprawiają doświetlenie wnętrz i wspierają energooszczędne użytkowanie domu.
Dom pasywny zużywa nawet 6-krotnie mniej energii na ogrzewanie niż budynki energooszczędne. Niższe rachunki za energię zwiększają komfort życia i wzmacniają stabilność domowego budżetu. Dlatego inwestorzy coraz częściej wybierają dom pasywny jako bezpieczną i przyszłościową inwestycję.
Projekt domu pasywnego spełnia wymagania klasy energetycznej A i zapewnia bardzo niskie zapotrzebowanie na energię. Dom w tej klasie energetycznej wspiera oszczędność energii oraz troskę o środowisko. Dom pasywny zwiększa także wartość nieruchomości i podnosi jej atrakcyjność na rynku. Dzięki temu inwestycja pozostaje korzystna zarówno dziś, jak i w przyszłości.
Rzuty pomieszczeń
Parter
81,50 m²
Poddasze
64,42 (74,81) m²
Potrzebujesz rysunku szczegółowego?
Udostępnimy kompletne materiały techniczne, abyś mógł dokładnie przeanalizować układ, wymiary i rozwiązania konstrukcyjne.
Masz pomysł na modyfikację?
Ocenimy Twoje propozycje i doradzimy najlepsze rozwiązania.
Informacje szczegółowe
Dane budynku
Technologia budowy
ŚCIANY ZEWNĘTRZNE
dwuwarstwowe, murowane z bloczka silikatowego gr. 24 cm zaizolowane termicznie styropianem grafitowym
TERMOIZOLACJA
- stropu nad parterem – wełna mineralna
- ścian zewnętrznych – styropian grafitowy
- fundamentów – polistyren ekstrudowany
ELEWACJE
wykończone tynkiem / tynkiem strukturalnym / płytami elewacyjnymi
ŚCIANY WEWNĘTRZNE
murowane z bloczka silikatowego gr. 12 cm
FUNDAMENTY
budynek posadowiony na żelbetowej, płycie fundamentowej*
*w ramach adaptacji projektu płytę fundamentową można zamienić na ławy fundamentowe
STROP
nad parterem – żelbetowy, natomiast nad poddaszem stanowi dolny pas więźby dachowej
DACH
więźba dachowa krokwiowo-jętkowa, pokryta blachą na rąbek stojący; kąt nachylenia połaci 42° (możliwość zmiany ±5°)
Instalacje energooszczędne
WENTYLACJA MECHANICZNA
Innowacyjne rozwiązanie zapewniające odzysk ciepła na poziomie ponad 84%, co znacząco ogranicza straty energii i obniża koszty eksploatacji.
System dba o najwyższy komfort powietrza w domu: jest kilkukrotnie filtrowane, wolne od zanieczyszczeń takich jak pyłki czy smog, a wilgotność utrzymana na optymalnym poziomie – co sprzyja zdrowiu mieszkańców i poprawia jakość życia każdego dnia.
POMPA CIEPŁA
typu powietrze–woda to ekonomiczne i wygodne rozwiązanie grzewcze, które nie wymaga kosztownych prac ziemnych, jak w przypadku pomp gruntowych.
Zapewnia efektywne i energooszczędne ogrzewanie domu, minimalizując rachunki i jednocześnie dbając o komfort mieszkańców.
OGRZEWANIE PODŁOGOWE
Nowoczesny system niskotemperaturowy, który równomiernie rozprowadza ciepło po całej powierzchni podłogi. Dzięki temu temperatura grzewcza może być niższa niż przy tradycyjnych grzejnikach, a wnętrza pozostają komfortowe i przyjemnie ciepłe. Posadzka działa jak magazyn ciepła – oddaje je stopniowo, zapewniając komfort przez dłuższy czas i stabilną temperaturę w domu.
Parametry
STANDARD ENERGETYCZNY
określa ilość energii potrzebnej do ogrzewania budynku. Dla domu pasywnego HG 06 passive wynosi ono 15 kWh/m2rok, aby panował w nim komfort cieplny. Jest ono tak niewielkie, że sezon grzewczy trwa od listopada do lutego, a w pozostałe miesiące roku budynek ogrzewa się ‚pasywnie’, czyli pozyskując zyski słoneczne oraz te wewnętrzne. Dom pasywny HG 06 passive zużywa ponad 6-krotnie mniej energii niż budynki standardowe i prawie 3-krotnie mniej niż dom niskoenergetyczny.
SZCZELNOŚĆ BUDYNKU
określa ilość powietrza (w tym ciepła), które ucieka z budynku w czasie jednej godziny; dla domu pasywnego wynosi ona mniej niż 0,6-h
Roczne zapotrzebowanie na ogrzewanie (w zestawieniu miesięcznym)
Działka i orientacja
Oprócz minimalnych wymiarów działki kluczowe jest odpowiednie nasłonecznienie budynku – prawidłowe ustawienie względem stron świata znacząco wpływa na komfort i efektywność energetyczną domu. Ważne są także warunki zabudowy (WZ) lub zapisy Miejscowego Planu Zagospodarowania Przestrzennego (MPZP), które określają możliwości zagospodarowania działki.
Sprawdź warunki zabudowy swojej działki
Upewnij się, że projekt domu wysoce energooszczędnego spełnia wymagania działki, sprawdzając aktualne WZ lub wypis z MPZP. W razie wątpliwości możesz zamówić szczegółową analizę, która rozwieje wszelkie niejasności i pozwoli bezpiecznie planować budowę.
Planujesz zakup idealnej działki?
Nasz e-book pomoże Ci wybrać najbardziej optymalną działkę, która w pełni wykorzysta potencjał domu pasywnego i zapewni niskie koszty ogrzewania przez wiele lat jego użytkowania.
Koszt budowy domu
Poznaj szacunkowy koszt budowy domu HG 06 passive, uwzględniający standard energetyczny, technologię oraz aktualne ceny materiałów i usług.
Dzięki temu łatwiej określisz realny budżet inwestycji i świadomie zaplanujesz kolejne etapy budowy.
Dodatki funkcjonalne
Odkryj dodatkowe rozwiązania i udogodnienia techniczne, które zwiększają energooszczędność i komfort domu oraz pozwalają idealnie dopasować projekt do Twoich potrzeb i stylu życia. Wybierając odpowiednie opcje, możesz zwiększyć funkcjonalność oraz codzienną wygodę mieszkańców.
Wentylacja mechaniczna
Zawarte w standardzie
Wentylacja mechaniczna z odzyskiem ciepła na poziomie 84% ciepła, znacząco ogranicza straty energii i koszty eksploatacji. Jednocześnie oczyszcza powietrze z pyłków i smogu, utrzymując optymalną wilgotność dla zdrowia i komfortu mieszkańców.
Pompa ciepła
Zawarte w standardzie
Pompa ciepła powietrze–woda to ekonomiczne i wysoce energooszczędne rozwiązanie grzewcze, które zapewnia komfortowe ogrzewanie domu przy niższych rachunkach za energię.
Ogrzewanie podłogowe
Zawarte w standardzie
Ogrzewanie podłogowe to nowoczesny system niskotemperaturowy, który równomiernie rozprowadza ciepło po całej posadzce, zapewniając komfort cieplny wnętrza przy niższej temperaturze niż tradycyjne grzejniki ścienne.
Centrum informacji
Co zawiera projekt:
Podobne projekty
Sprawdź inne projekty z tej samej kategorii, które mogą Cię zainteresować. Każdy projekt został starannie zaprojektowany z myślą o komforcie, funkcjonalności i nowoczesnym designie.
ABC budowy w praktyce
Poznaj trzy kluczowe etapy, które prowadzą od wyboru działki, przez przygotowanie projektu, aż po sprawne rozpoczęcie budowy. Każdy z nich obejmuje narzędzia, konsultacje i materiały, które pomagają podejmować świadome i bezpieczne decyzje inwestycyjne.
Działka i przygotowanie inwestycji
Właściwy wybór działki to kluczowy krok do bezproblemowej realizacji domu wysoce energooszczędnego. Oferujemy wsparcie, które pomaga uniknąć błędów i ocenić realny potencjał terenu.
- Działka dla domu wysoce energooszczędnego
- Działka dla domu samowystarczalnego
- Konsultacje działki
- Analiza WZ lub MPZP
Projekt i dokumentacja domu
Na etapie projektowym pomagamy dopracować każdy szczegół — od konsultacji, przez drobne modyfikacje, aż po przygotowanie dokumentacji, która ułatwi dalsze kroki inwestycji.
- Konsultacje (przed)projektowe
- Małe zmiany projektowe (zgoda na zmiany)
- Projekt koncepcyjny
- Wersja elektroniczna PDF
- Dodatkowy egzemplarz
Budowa i wsparcie realizacyjne
Zapewniamy narzędzia i materiały, które pomagają sprawnie przejść przez etap budowy, a także uzyskać dodatkowe wsparcie przy realizacji domu energooszczędnego.
- Projekt wykonawczy
- Nadzór budowy
- Tablica budowy
- FAQ na budowie
- Programy wspierające budowę domu wysoce energooszczędnego
